Before / After


One day I was walking in a rich neighborhood where there was little social space and affordable housing, and that’s where I had the idea for this project. What if in this empty plot of land, I could fix both problems?
Site Location
(Dougherty Rd and Crow Canyon Rd intersection)

This land was unique in that it’s on a hill that spans from a semi-busy intersection to a neighborhood street. The idea here was to somehow combine a commercial building with a residential one, and that’s what I did.
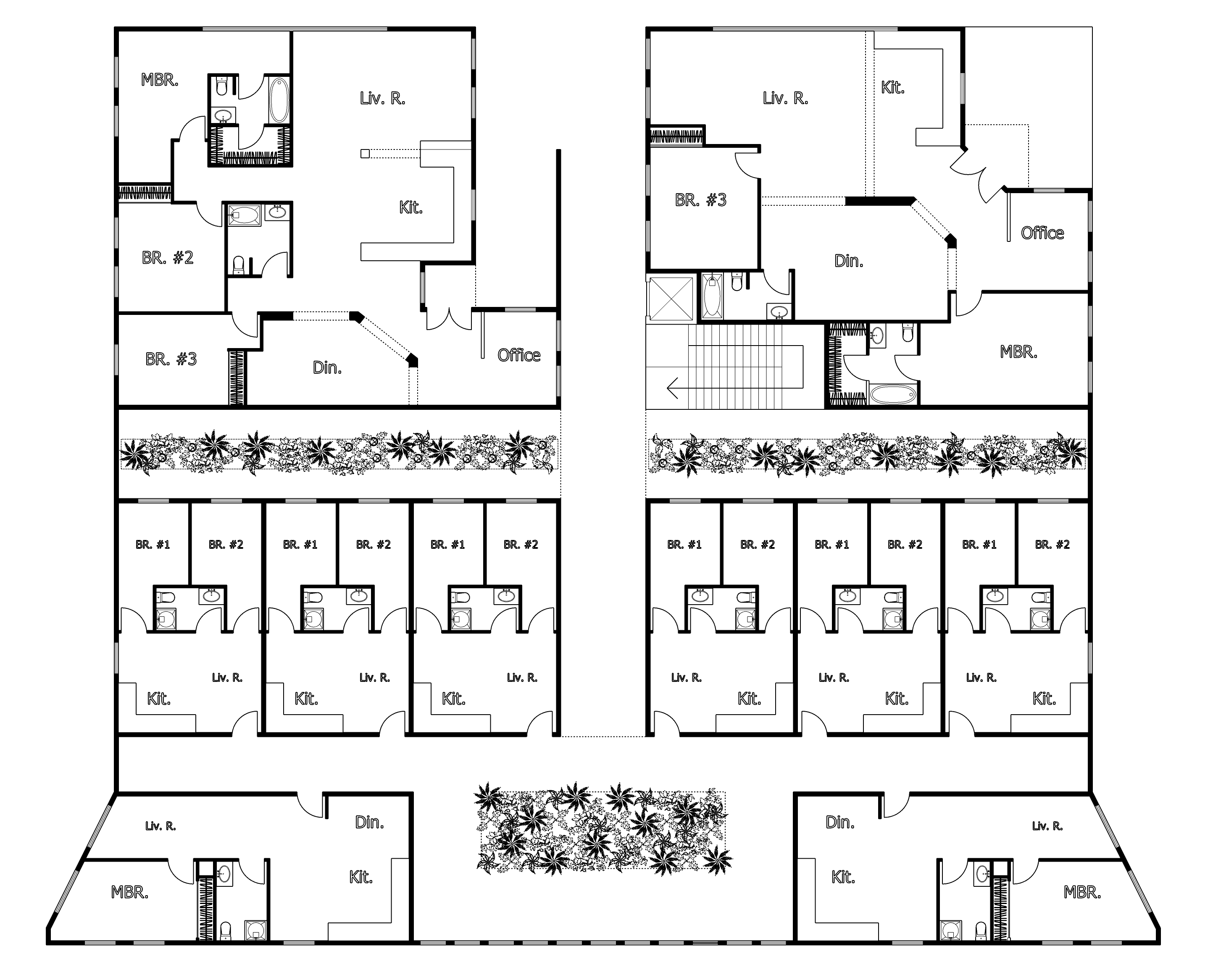
On the top floor, people with low income live who’s work would be low skilled jobs and preferably be in the same neighborhood, that way they can do more jobs for people in the neighborhood for cheaper, commute less, and be part of the same community.
On the ground floor, there is a community center where people can gather, use the gym, buy things at the shop, have events, play games, hang out at the cafe, do some work with the free WiFi, or even have their kids be taken care of at the daycare while they are at work.



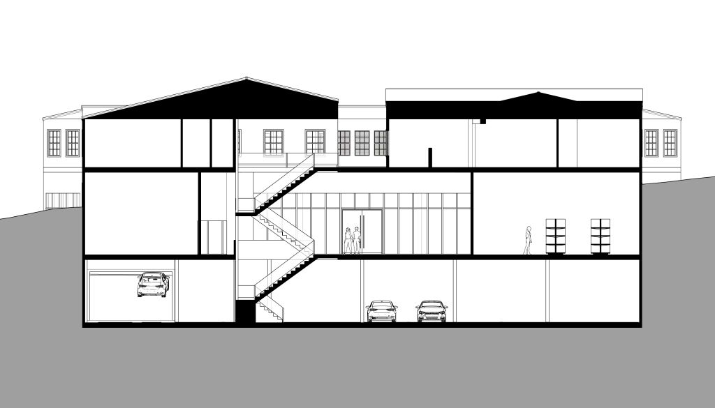
Section Views


Underground there is also a parking garage both for people who live here and also for people who visit.
Commercial Side

Residential Side

The Commercial side was designed to look like the City Center building in this city (San Ramon) so that the city can maintain a similar theme. Likewise, the residential side was designed to look like the surrounding houses so that it can fit in.
Commercial Side Elevation

Residential Side Elevation



Leave a comment