After researching, I came up with a building to act as a community center and a place to house SF’s WPA model. This building follows all of my research and is very energy efficient and maintains a comfortable temperature.




Void Spaces

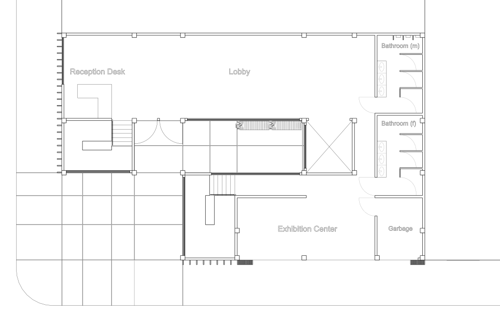
1st Floor

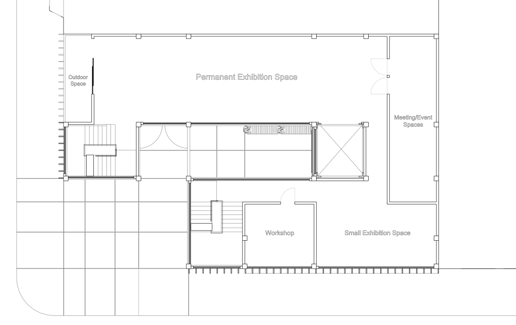
2nd Floor

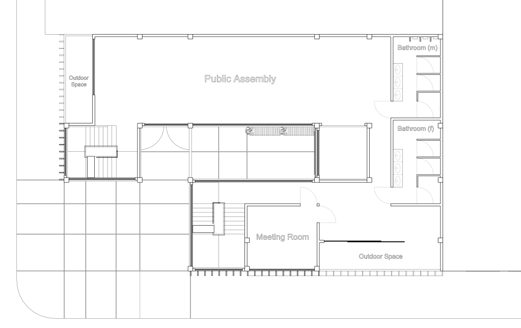
3rd Floor

4th Floor

Roof

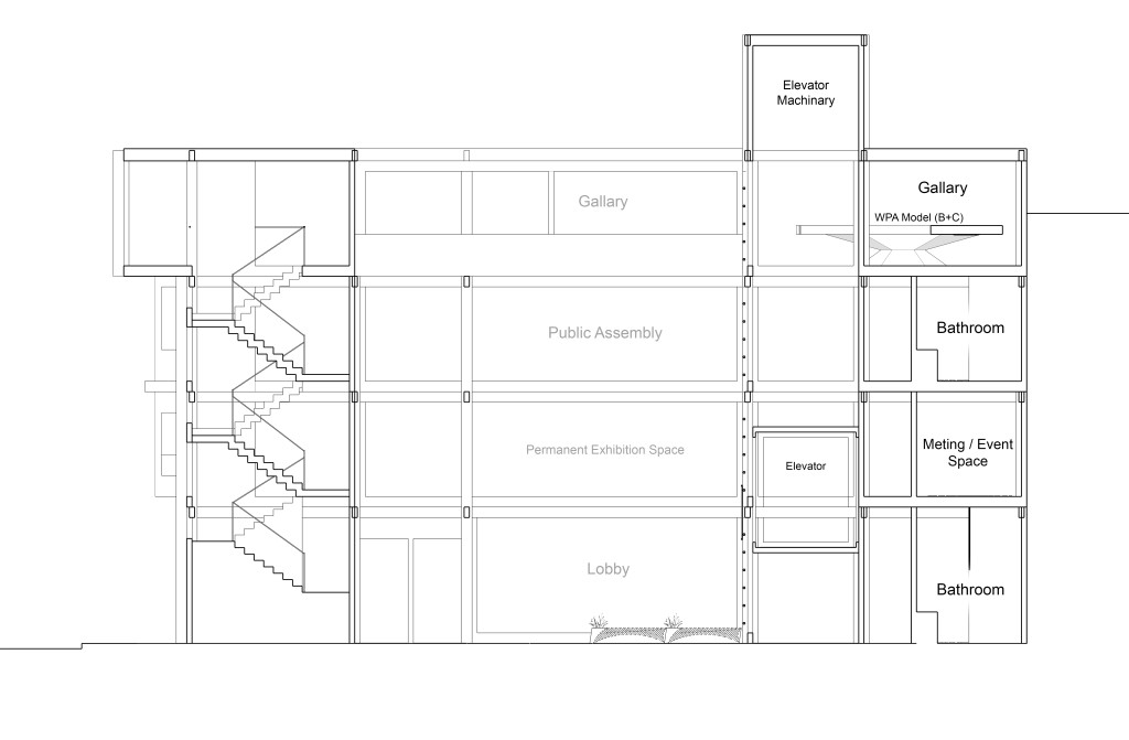
Section 1

Section 2


