

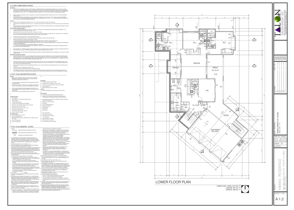
Floor Plans
My work:
– Note callouts
– Notes review and editing
– Placement and sheet creation


Reflected Ceiling Plans
My work:
– Pattern drawings
– Note callouts
– Notes review and editing
– Placement and sheet creation

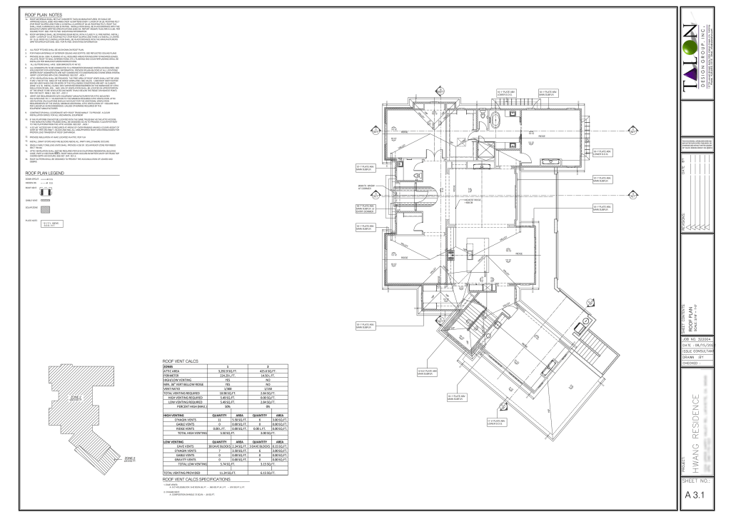
Roof Plan
My work:
– Roof calculations
– Roof diagram
– Note callouts
– Notes review and editing
– Placement and sheet creation


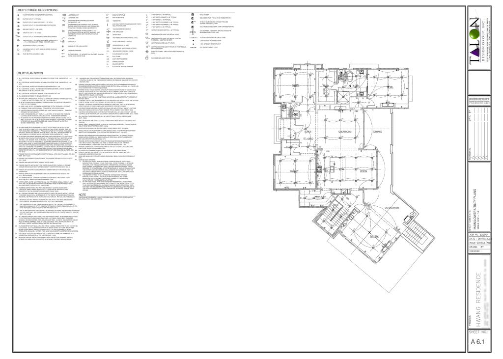
Utility Plans
My work:
– All utility item placements
– Notes review and editing
– Placement and sheet creation


Leave a comment