
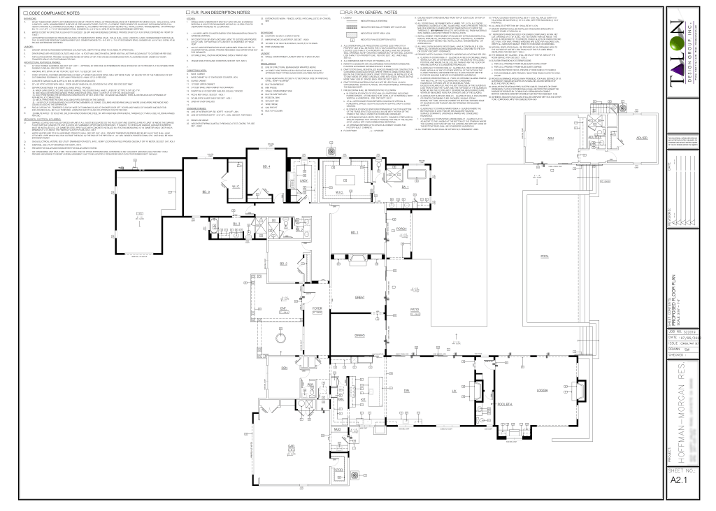
Floor plan with notes
My work:
– Note callouts
– Notes review and editing
– Placement and sheet creation

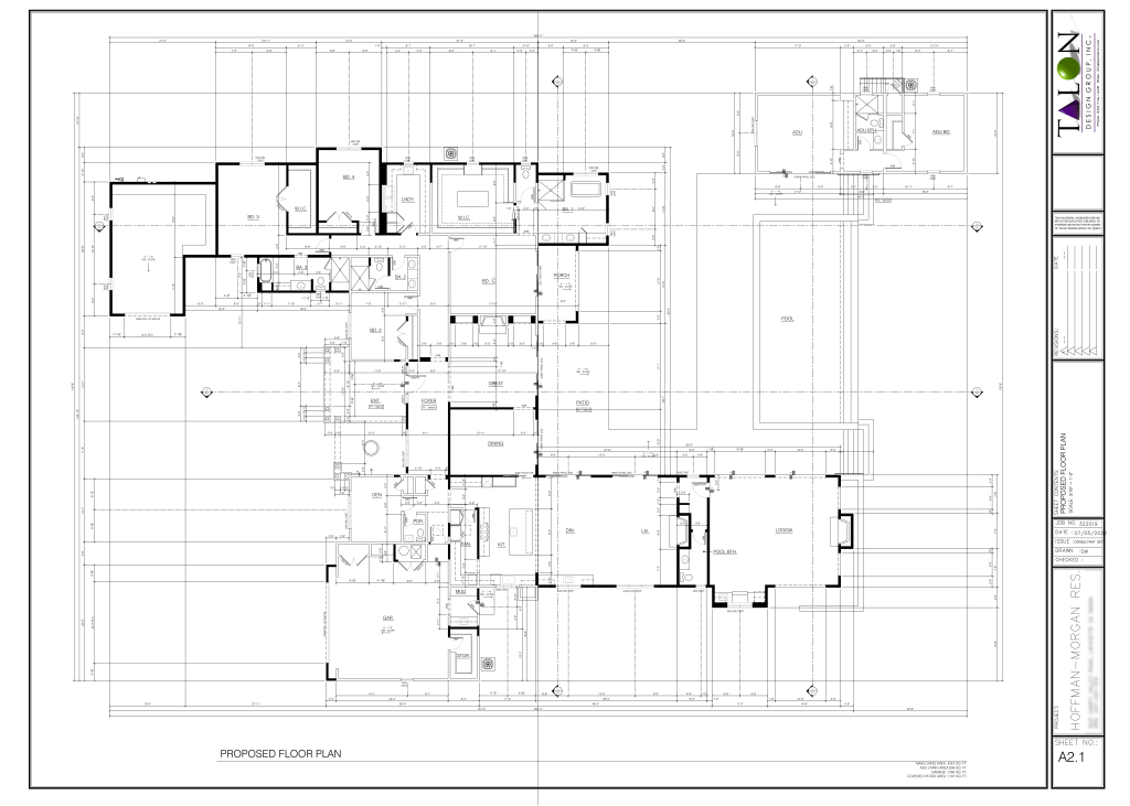
Floor plan with dimensions
My work:
– Dimensions
– Placement and sheet creation

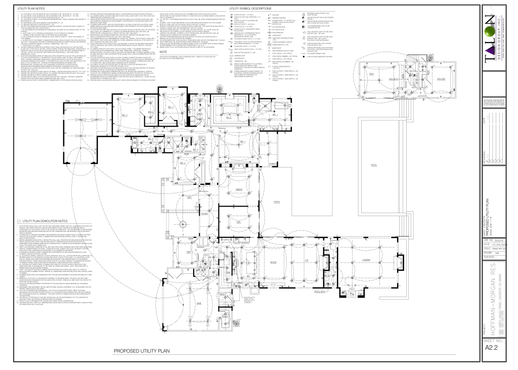
Utility plan
My work:
– All utility item placements
– Notes review and editing
– Placement and sheet creation


Leave a comment